발코니 계획시에는 국토교통부 고시 ‘발코니 등의 구조변경절차 및 설치기준’을 참조하기 바란다. 법제처 국가법령정보센터에 공개되어 있다.
발코니 창호 및 난간 등의 구조를 비롯해 건축허가 시 도면 작성과 제출에 관한 내용을 규정하고 있다.
주택 발코니 확장의
주요 이슈
발코니 확장은 주택의 실사용면적을 넓힐 수 있는 주요한 설계 요소로 자리잡고 있다.
발코니 공간의 면적산정 등 발코니 확장시 고려해야할 주요 내용들을 소개한다.
2005년, 건축법 시행령으로 발코니 확장 첫 도입
발코니 확장은 2005년 12월 2일자로 개정된 건축법 시행령에서 발코니의 정의가 도입되면서 시작됐다. 당시 정부는 아파트 발코니의 30~40%를 불법으로 확장해 사용해 온 것에 대한 단속의 어려움을 이유로 실내 발코니를 인정했다. 발코니가 실내화되면서 주택 화재시 피난의 역할을 해야 하는 발코니의 본래 기능을 상실하게 됐다는 지적도 따랐지만, 이후 발코니 확장은 주거건축에서 중요한 설계요인으로 자리잡았다.
단위세대 입장에서 보면, 발코니를 실내로 얼마나 확장할 수 있는가가 중요하다. 전용면적보다 더 넓은 실사용면적을 확보할 수 있기 때문이다. 주택에서 전용면적이라 함은 발코니 확장을 제외한 면적을 말한다. 국민평형인 85㎡ 주택의 경우 평수로 환산하면 25.7평이지만 실사용면적은 약 32평에서 33평 정도가 된다. 그 차이가 바로 발코니 확장 면적이다.
발코니 확장은 설계단계부터 발코니를 실내로 편입시켜 설계하며, 도면상으로만 발코니 확장 부분이 표시된다. 아파트 분양이나 빌라, 연립주택 등 중소 규모의 주거건축을 시행할 때 중요한 역할을 하는 발코니의 주요 내용을 알아보자.
발코니의 법적 정의
「건축법 시행령」제2조제14호에서 발코니를 정의하고 있다. ‘발코니’란 건축물의 내부와 외부를 연결하는 완충공간으로서 전망이나 휴식 등의 목적으로 건축물 외벽에 접하여 부가적(附加的)으로 설치되는 공간을 말한다. 이 경우 주택에 설치되는 발코니로서 국토교통부장관이 정하는 기준에 적합한 발코니는 필요에 따라 거실·침실·창고 등의 용도로 사용할 수 있다.
법적정의에서 눈여겨 살펴봐야 할 용어가 있다. 바로, ‘내외부를 연결하는 완충공간’, ‘전망이나 휴식등의 목적’, ‘건축물외벽에 접하여 부가적으로 설치’, ‘거실등의 용도로 사용할 수 있다’ 라는 문구가 중요하다.
발코니 인정여부에 대한 논쟁이 발생할 경우, 정부는 이 법적정의를 토대로 해석하고 질의회신을 하고 있기 때문이다. 이 정의에 따라 발코니 확장 공간은 기존 외부발코니를 실내로 확장해 거실이나 침실공간으로 사용할 수 있는 것이다.
2025년 시작된 발코니 확장은 어느덧 주택설계의 필수 요소로 자리잡았다. 현재 단독주택, 다가구주택, 다중주택, 다세대주택, 연립주택뿐 아니라 아파트에 이르기까지 대부분의 주거건축에서 발코니 확장을 적용 중이다.
발코니 공간의 면적산정
건축물의 면적 및 높이 등 세부산정기준을 보면, 건축물의 단열재가 외단열일 경우엔 발코니 확장부분은 벽체 중심선에서 외벽구조체 중심까지 산정하고 있으며 그 너비의 1.5미터까지 발코니로 허용하고 있다. 또한, 발코니는 건축면적에는 산입(건폐율적용)하고 바닥면적에서는 제외(용적률제외)하고 있다.
내단열공법으로 시공하는 아파트를 제외한 대부분의 주거건축물은 외단열공법으로 공사하기 때문에 <그림1>에서 보는 것처럼 벽체에서 1.5미터까지 발코니를 확장하고, 용적률에서는 제외되고 있다. 한마디로 발코니 확장은 주거 단위세대에서 누리는 보너스 공간이라고 볼 수 있다.
<그림1>
건축구조기준 등에 적합한 확장형 발코니 주택의 건축면적 산정 예시
(바닥면적 산정 시에도 동일하게 적용함)
2면 발코니 확장, 3면 발코니 확장 인정여부
발코니 확장으로 증가되는 면적은 전용면적 대비 20~30%를 차지한다. 따라서 설계를 어떻게 하느냐에 따라 발코니 확장으로 인한 보너스 공간의 크기에 차이가 발생한다. <그림2>를 참고해 보면, 일반적으로 세대당 2면에 발코니 확장을 인정받는 경우가 많다. 3면 발코니 인정은 법적으로는 가능하지만, 지자체별로 사업계획승인시 인정 여부를 판단하게 되므로 허가가 나지 않을 수도 있다. 3면 발코니를 설계한다면, 전용면적의 35~40%까지 추가 실내공간을 확보할 수 있기 때문에 세대별 실사용면적이 2면 발코니 확장 세대보다 한층 커진다.
<그림2>
2면 발코니 확장과 3면 발코니의 확장(예)
발코니 확장 후 거실공간의 너비확보
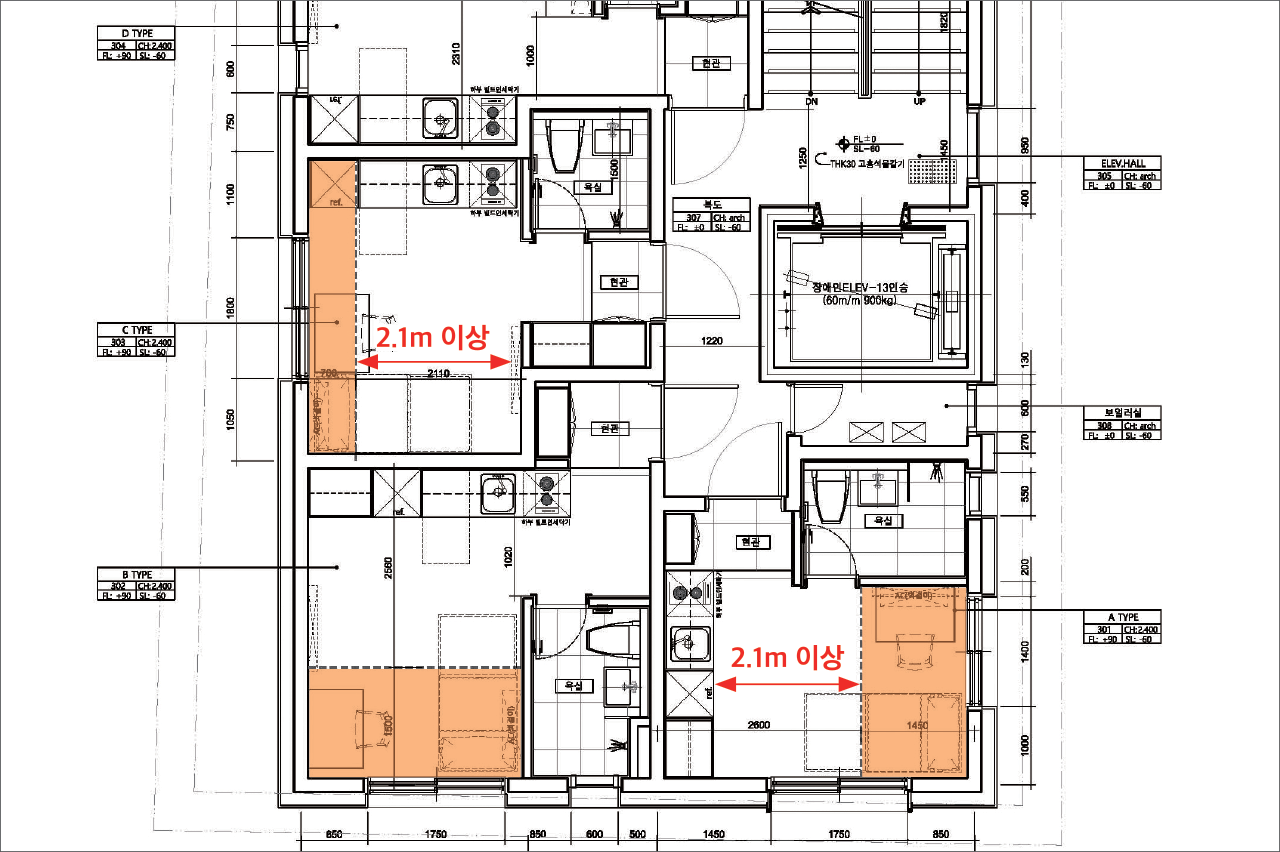
<그림3>의 도면은 원룸형 다가구주택의 평면도이다. 층별 4세대가 구성되어 있고, 실내 발코니를 확장해 공간을 만들었다. 이때 발코니 확장 후 거실의 최소 길이는 2.1m를 확보해야 한다. 사실 건축법에서는 거실 최소 길이에 대한 규정이 없지만 최소한의 주거생활을 위한 공간확보 차원에서 건축허가시 2.1m를 요구한다.
발코니 확장 후 2.1m 이상의 거실을 확보하라는 이유는 발코니 확장 부분을 기존 외부발코니로 원상복구 시, 남은 공간으로 주거생활이 가능하느냐의 여부를 따지기 때문이다. 발코니 확장 공간을 제외하고 최소 2.1m를 확보해서 주거공간을 만들라는 취지로 이해하면 된다.
발코니 확장 공간의 최소너비는 지자체별로 별도 기준을 마련하고 있다. 단순히 면적 확보를 위해 발코니 확장을 30cm 정도 하겠다고 하는 것은 현실적으로 불가하다. 원상 복구시 30cm가 발코니 기능을 할 수 없다고 판단해서다. 지자체별로 최소한의 발코니 너비를 규정하고 있다는 점을 기억하자.
발코니 확장 부분에 보일러실을 설치할 경우 바닥면적 산정 여부
발코니부분에 보일러실을 설치할 경우 보일러실은 발코니 공간이 아니라 보일러실로 구획되며 바닥면적에 산입을 하게 되므로 주의해야 한다.
<그림3>
발코니 확장시
거실 공간의 너비 확보
발코니에 화장실을 설치해 사용할 수 있는지 여부
발코니에 화장실을 설치해 사용할 수 있는지 여부
주택에 설치된 발코니는 국토교통부장관이 정하는 기준에 따라 거실이나 침실, 창고 등 다양한 용도로 사용하기 위해 구조변경을 할 수 있다. 하지만 국토교통부는 주택으로서의 최저주거기준을 만족하기 위한 전용 부엌, 화장실(목욕시설포함) 등 필수적인 설비는 실내 공간에 기본적으로 갖추어야 할 것이므로 화장실을 설치 사용할 수 없다고 밝혀 왔다.
하지만 발코니 주방 설치는 각 지자체별로 해석이 달라 논란이 많다. 최근 서울시는 서울 관내 공동주택 발코니 확장시 발코니에 부엌을 설치할 수 있도록 규제를 풀겠다고 발표한 바 있다.
이와 관련, 서울시에서는 국토교통부에 발코니 구조변경 부분에 주방 싱크대나 가스 시설 설치가 가능한지 질의했다. 국토부는 회신문에서 “취사 등 작업을 위한 방(주방 등)은 거실에 해당될 것이므로 주택 발코니를 구조 변경해 해당 목적(주방)을 위해 사용할 수 있다 봄이 타당할 것”이라고 밝히면서 그동안 금지했던 발코니 주방 설치를 가능하게 인정해 주었다. 취사도 거실의 정의상 작업에 해당하는 방이니 취사에 필요한 주방 싱크대나 가스설비 설치를 할 수 있다는 얘기다.
생생주택 유튜브
